The Valencia

Home type: Single Family Detached Garage

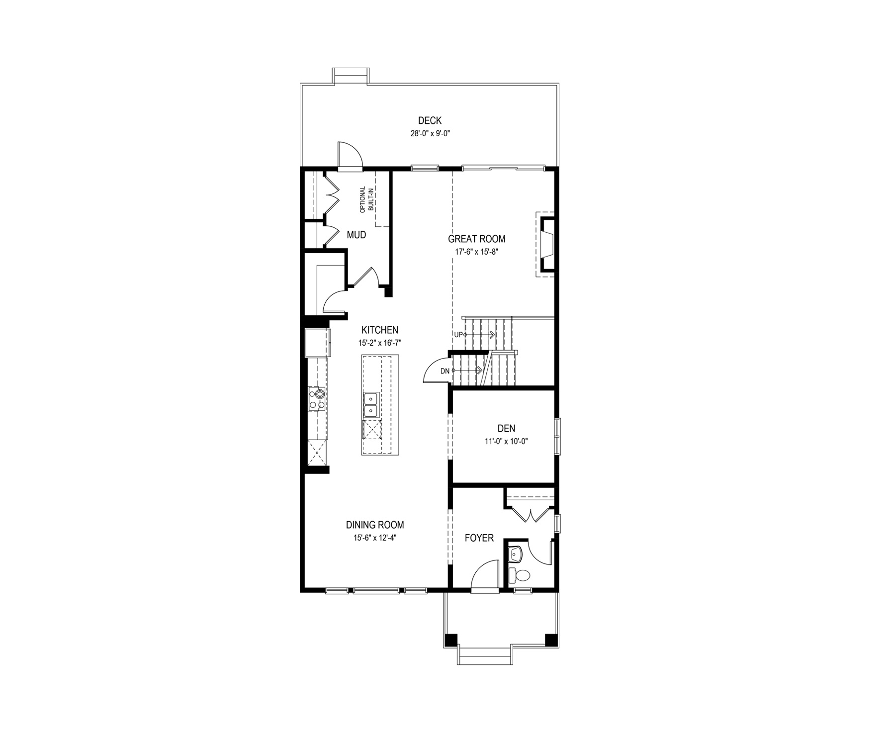
3 Bed 2.5 Bath 2465 square feet

Home Model

This Daytona home model includes high-quality home finishings and thoughtful features, making it safe, comfortable and budget friendly. You can choose from a variety of different floorplan options and styles to suit your unique lifestyle.

Elevations Exterior Styles

Some home models come in a variety of exterior styles to perfectly compliment the communities in which they’re built.

Valencia R

Actual product may differ slightly from the images, floor plans and renderings shown.

Move-in Ready These homes are ready and waiting for you

Some home models come in a variety of exterior styles to perfectly compliment the communities in which they’re built.
Community: Harmony

The Valencia R

3 Bed 2.5 Bath 2465 square feet

Home Type: Corner Lot, Basement Development, Open to Below,

$904,667 Pre-GST. Includes home & lot.

Community: Harmony

The Valencia R

3 Bed 2.5 Bath 2465 square feet

Home Type: Triple Car Detached Garage, Large Back Yard, Open to Below, Side Entry, Main Floor Den

$857,048 Pre-GST. Includes home & lot.

Communities This model is available to build in...

Springbank

Harmony

2024 Bild Calgary award Winner: Community of the Year- Calgary Region

Subscribe to our newsletter

Treaty Seven Territory

Daytona Homes Calgary is located on the traditional territories of First Nations Peoples of Treaty 7. The Treaty 7 Lands in Southern Alberta are home to the Kainai Nation, Piikani Nation, Siksika Nation, Tsuu T’ina Nation, and the Bearspaw, Chiniki and Wesley (Stoney- Nakoda) Nations. Calgary is also home to Region 3 of the Métis Nation of Alberta.

© 2026 Daytona Homes. All Rights Reserved